施工地點: 臺中哈斯奎洋酒 407台中市西屯區河南路二段301巷50號
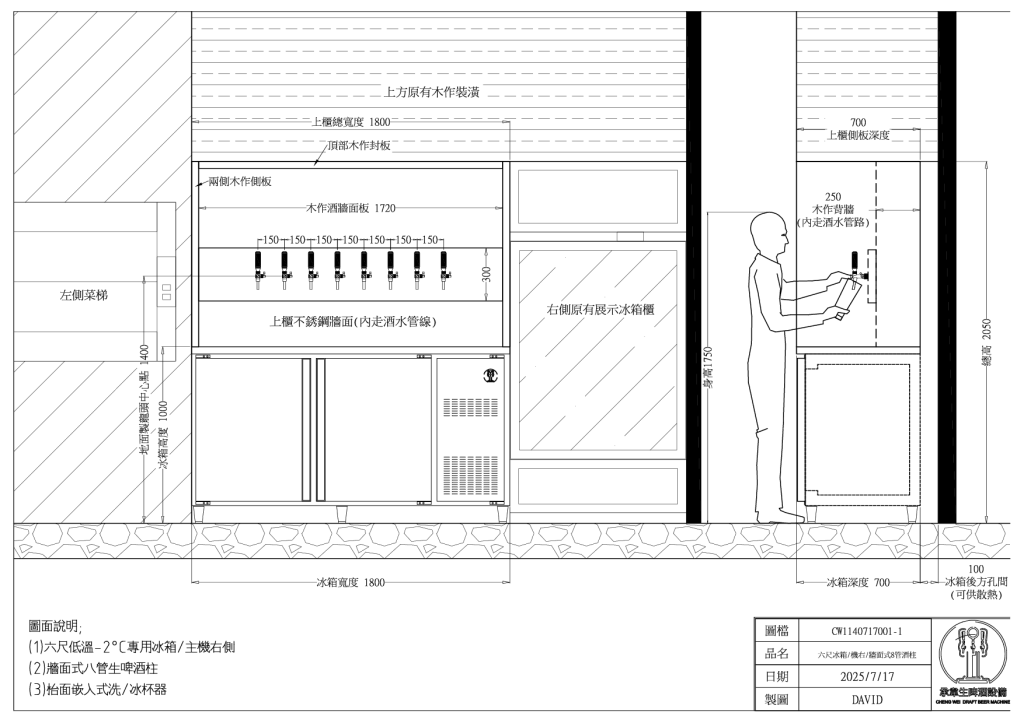
施工內容:六尺-2°C低溫專用冰箱搭配全客製化生啤酒牆上座

本次施作心得:
這次的專案,對我們團隊來說是一場「從無到有」的挑戰與成就感的累積。從最初的場勘丈量開始,我們必須把空間特性、動線安排與設備需求逐一評估,再透過設計圖與3D模擬,讓客戶能清楚看到未來完成的模樣。
進入施工階段後,每一步都非常關鍵:洗杯器的排水槽與木作結構的搭建、酒水氣體管線的定位與固定、酒頭牆面貼皮與開孔,每個細節都需要精準到位,因為只要一點誤差,就會影響到後續設備的安裝與使用。尤其是管線配置與酒頭定位,除了要考慮功能性,更要兼顧美觀與使用的流暢度。
在過程中,我們也特別重視與現場工班的協調,確保施工品質與進度能同步掌握。到了測試環節,當第一杯生啤順暢倒出時,那份喜悅不只是設備啟動的完成,更是對我們前期努力的一種肯定。
這次哈斯奎洋酒的專案,不只是安裝一套生啤設備,而是幫客戶打造一個能夠與顧客分享美酒、創造氛圍的舞台。每一次專案的完成,對我們來說都是新的學習與突破,也再次提醒自己「專業、細心與堅持」的重要。
























發表留言