施工地點: 南投縣魚池鄉中興巷-九樹森林 9trees la felicità
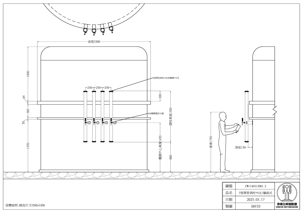
施工內容:五尺低溫-2°C專用冰箱搭配不銹鋼客製T型單管酒柱(附LED燈牌)
在這片被森林擁抱的餐酒館空間,我們為《九樹森林 9trees la felicità》量身打造一套兼具實用與美感的飲品出酒設備。
本次規劃重點:
🔸 五尺低溫-2°C專用冰箱
🔸 客製不銹鋼 T 型單管酒柱,以直立式風格呈現
🔸 整體設計與牆體融合,呈現質感工業風
📸施工流程一覽:
1️⃣ 現場丈量
2️⃣ 工程圖繪製與報價
3️⃣ 設備進場
4️⃣ 牆面鑽孔定位施工
5️⃣ 精準開孔
6️⃣ 酒柱安裝
7️⃣ 細部調整固定
8️⃣ 冰箱開孔
9️⃣ 定位配管收尾完成
這不只是設備安裝,更是空間氛圍的延伸。






















發表留言